Наши книги можно приобрести по карточкам єПідтримка!

Зміст

Вступ

Дії у надзвичайних ситуаціях

Щоденні перевірки та визначення несправностей

Експлуатація автомобіля у зимовий період

Поїздка на СТО

Інструкція з експлуатації та технічного обслуговування

Витратні матеріали для технічного обслуговування

Застереження та правила техніки безпеки під час виконання робіт на автомобілі

Основні інструменти, вимірювальні прилади та методи роботи з ними

  • Базовий комплект необхідних інструментів
  • Методи роботи із вимірювальними приладами

Механічна частина двигуна

Система охолодження

Система змащення

Система живлення

Система керування двигуном

Система впуску та випуску

Електроустаткування двигуна

Коробка передач

Привідні вали та головна передача

Підвіска

Гальмівна система

Рульове керування

Кузов

Система пасивної безпеки

Система опалення, вентиляції та кондиціювання повітря

Електроустаткування та електросистеми автомобіля

  • Попередження та запобіжні заходи
  • Комп'ютер / інтегрована система
  • Інформаційно-розважальна система
  • Система освітлення
  • Система склоочисників / склоомивачів
  • Комбінація приладів та система інформування водія
  • Верхній люк
  • Звуковий сигнал
  • Розетка живлення
  • Вікна, стекла та дзеркала заднього виду
  • Система передачі даних
  • Сервісні дані та специфікація
  • Опис електросхем
  • Електросхеми
  • Точки з'єднання з «масою»
  • Схема розподілу живлення блоку запобіжників та реле передньої частини моторного відсіку
  • Схема розподілу живлення внутрішнього блоку запобіжників та реле
  • Система запуску
  • Система заряджання
  • Живлення, «маса» та шина передачі даних блоку ECM
  • Система запалювання
  • Система паливної форсунки
  • Блок ECM та датчики системи управління
  • Управління охолодним вентилятором
  • Фара
  • Габаритний вогонь
  • Денний ходовий вогонь
  • Протитуманний ліхтар
  • Покажчик повороту, аварійна сигналізація
  • Стоп-сигнал
  • Ліхтар заднього ходу
  • Внутрішній стельовий світильник
  • Підсвічування дверей
  • Декоративне підсвічування
  • Ліхтар освітлення багажника
  • Підсвічування
  • Круїз-контроль
  • Система адаптивного круїз-контролю (ACC)
  • Живлення, «маса» та шина передачі даних блоку TCU
  • Електронний механізм перемикання передач - тип 1
  • Електронний механізм перемикання передач - тип 2
  • Система керування повним приводом
  • Перемикач режимів
  • Живлення, «маса» та шина передачі даних комбінації приладів
  • Звукова та візуальна сигналізація, індикатор комбінації приладів
  • Проекційний дисплей
  • Живлення, «маса» та шина передачі даних головного блоку аудіосистеми
  • Живлення, «маса» та шина передачі даних головного блоку аудіосистеми (експортна модель)
  • Звуковий динамік
  • Живлення, «маса» та шина передачі даних підсилювача
  • Підсилювач аудіосигналу / аудіо динаміка
  • Система кругового огляду
  • Прикурювач та бортове харчування
  • Зовнішнє дзеркало заднього виду з електроприводом (з функцією пам'яті)
  • Внутрішнє дзеркало заднього виду із затемненням
  • Система передніх склоочисників / склоомивача
  • Електричний склопідйомник
  • Блок TPMS
  • Система обміну даними PT-CAN
  • Система обміну даними IF-CAN
  • Система обміну даними CF-CAN
  • Система обміну даними CS-CAN

Тлумачний словник

Тільки оригінальні посібники
Доступно відразу після оплати
Повна відповідність паперовим виданням
100% захист ваших оплат
(9)

Система пуску / зарядки Geely Xingyue / Tugella з 2019 року випуску (+ рестайлінг 2022)

Зазвичай користувачі нашого сайту знаходять цю сторінку за такими запитами:
електросхема Geely, скачати електросхему Geely, електрообладнання Geely, схема електрообладнання Geely, двигун Geely, електросхема Geely Tugella, скачати електросхему Geely Tugella, електрообладнання Geely Tugella, схема електрообладнання Geely Tugella, двигун Geely Tugella

3. Система пуску / зарядки

Опис та принцип дії

Опис та принцип дії акумулятора

В автомобілі застосовується акумуляторна батарея, яка не потребує технічного обслуговування. На відміну від традиційних батарей, вона не має вентиляційної пробки на кришці і повністю герметична, за винятком невеликих вентиляційних отворів з обох боків. Через ці отвори може виходити невелика кількість газу, що виділяється електролітом внаслідок хімічної реакції. Якщо вентиляційні отвори будуть відсутні, внутрішній тиск в акумуляторній батареї постійно підвищуватиметься внаслідок збільшення кількості газів, що призведе до розриву корпусу батареї. Порівняно зі звичайною акумуляторною батареєю, акумуляторна батарея має такі переваги:

  • Немає необхідності доливати воду протягом терміну служби акумулятора.
  • Забезпечується захист від надлишкового заряду.
  • Не такі часті витоку, як у традиційної акумуляторної батареї.
  • Менша вага та розміри при більшій ємності.

В електричній системі автомобіля акумулятор виконує три основні функції:

  • Подає електроенергію для запуску двигуна автомобіля.
  • Працює як регулятор напруги в бортовій мережі автомобіля.
  • Подає електроенергію в бортову мережу протягом певного періоду часу, якщо електроенергії, що виробляється генератором, не вистачає для задоволення потреб електричного обладнання.

Опис та принцип роботи системи пуску

Система запуску включає акумуляторну батарею, пусковий перемикач, блок PEPS, блок ЄСМ, стартер, реле стартера і відповідні ланцюги, з'єднані проводами. Коли натискається пусковий перемикач для перемикання системи живлення в режим ST, реле стартера вмикається та подає живлення на тягове реле стартера, яке запускає електродвигун. Для більш повного ознайомлення з принципами роботи див. «Принцип роботи системи запуску».

Опис та принцип роботи системи заряджання

Система зарядки включає акумуляторну батарею, генератор, комбінацію приладів блок ЄСМ і відповідні ланцюги. Генератор складається з регулятора напруги, випрямляча, статора та ротора, встановлених усередині корпусу генератора. Під час роботи двигуна приводний ремінь обертає ротор генератора. Змінний струм, що виробляється генератором, перетворюється за допомогою діодного випрямляча на постійний струм, який потім надходить в систему зарядки. Регулятор напруги автоматично регулює струм в обмотці збудження генератора підтримки вихідної напруги в межах необхідного діапазону. Для більш повного ознайомлення з принципами роботи див. п. «Принцип роботи системи заряджання».

Процедура заряджання: 1. Використовуйте спеціальний зарядний пристрій для заряджання герметичної акумуляторної батареї, знятої з автомобіля. Переконайтеся, що всі джгути зарядного пристрою чисті та надійно ізольовані. Для більшої ефективності заряджайте акумулятор, коли електроліт і електродні пластини мають кімнатну температуру. Якщо температура акумулятора надто низька, вона може не заряджатися протягом декількох годин після ввімкнення зарядного пристрою.

2. Заряджайте акумуляторну батарею, поки зарядний пристрій не покаже, що батарея повністю заряджена, або напруга батареї, що вимірюється, не буде близькою до повної зарядки. Під час заряджання перевіряйте акумуляторну батарею кожні півгодини.

3. Після заряджання виконайте навантажувальні випробування акумулятора, див. п. "Принцип роботи системи зарядки". Перевірка струму розряджання та паразитного навантаження акумуляторної батареї. Заряджання повністю розрядженої акумуляторної батареї (після зняття з автомобіля): необхідно суворо дотримуватися наведених нижче вимог; в іншому випадку можна помилково замінити справну акумуляторну батарею.

Повністю розряджену акумуляторну батарею слід заряджати згідно з наступною процедурою: 1. Виміряйте напругу на виводах акумулятора за допомогою точного вольтметра. Якщо виміряне значення менше 10 В, струм зарядки буде слабким, і акумуляторна батарея заряджатиметься малим струмом (мА) після певного періоду часу.

2. Встановіть зарядний пристрій на зарядний пристрій.

3. Продовжуйте процес заряджання акумуляторної батареї та заряджайте протягом 4 годин під напругою не менше 16 В:

  • Якщо після закінчення зазначеного часу зарядний струм не вимірюється, замініть акумулятор.
  • Якщо зарядний струм вимірюється під час заряджання, це означає, що акумуляторна батарея справна і може бути заряджена до повної ємності.

Принцип роботи системи

Принцип роботи системи запуску

При переведенні пускового перемикача в режим ST: Блок PEPS надсилає низькочастотний сигнал для перевірки дійсності ключа. Якщо ключ дійсний, він передає радіочастотний сигнал у відповідь. Після отримання сигналу у відповідь і належного результату ідентифікації блок PEPS перевіряє дотримання умов для пуску двигуна. Якщо всі умови дотримані, PEPS передає сигнал дозволу пуску в блок ЄСМ. Якщо всі умови виконані, висновки 1 і 2 реле стартера ER01 і 2 виведення реле ER02 утворюють ланцюг управління, яка з'єднує висновок 5 реле ER01 з висновком 3 реле ER02. Електроживлення надходить з виведення 5 реле стартера на виведення 1 роз'єму EM04c джгута проводів стартера.

При надходженні живлення тягове реле стартера замикається, утворюючи замкнутий ланцюг між акумуляторною батареєю і стартерним електродвигуном.

Принцип роботи стартера: стартер - це електродвигун постійного струму з редуктором, статор - це постійний магніт, ротор - це якір з обмоткою, що збуджується за допомогою магнітного поля обмотки. протікає електричний струм, який створює магнітну силу. стартера збільшується за допомогою планетарного редуктора. шестерню із зачеплення з маховиком. Для запобігання пошкодженню стартера внаслідок надмірного підвищення частоти обертання після пуску двигуна блок PEPS відключає ланцюг керування реле стартера, після чого стартер припиняє роботу.

Принцип роботи системи заряджання

Генератор подає постійний струм в електричну систему автомобіля, забезпечуючи її працездатність та заряджання акумуляторної батареї. Вихідна напруга регулюється вбудованим регулятором.

  • Коли пусковий перемикач переведено в режим OFF: напруга акумуляторної батареї подається на виведення 1 роз'єму EN13c джгута проводів генератора через запобіжник MF02, розташований у блоці запобіжників у моторному відсіку. Ця напруга є єдиним джерелом живлення регулятора.
  • Коли пусковий перемикач переходить у режим ON, але двигун не працює:

На виведенні 1 роз'єму EN13c джгута проводів генератора напруга є постійною, і після подачі живлення на обмотку збудження навколо обмотки створюється відповідне магнітне поле.

Висновок 1 роз'єм EN14c джгута проводів генератора підключений до виведення 93 роз'єм CA21d блоку ЄСМ і є керуючим контактом для індикатора системи зарядки. Контакт з'єднується з масою при непрацюючому двигуні і включає індикатор системи заряджання.

  • Коли двигун працює: під дією магнітного поля обмотки збудження в статорних обмотках індукується напруга змінного струму. Регулятор напруги відстежує цю напругу та регулює напругу змінного струму, що генерує обмотка статора. Змінний струм перетворюється на постійний вбудованим у генератор випрямлячем. Вихідна напруга генератора, регульована регулятором напруги, подається на акумуляторну батарею та бортову мережу автомобіля.
  • Оскільки висновок 1 роз'єму EN13c джгута проводів генератора з'єднаний з акумуляторною батареєю, при повністю зарядженому акумуляторі регулятор напруги обмежує струм в обмотці збудження, тим самим зменшуючи вихідну напругу генератора і запобігаючи перезарядження акумуляторної батареї. При розрядженні акумуляторної батареї або надмірному навантаженні регулятор напруги збільшує струм збудження магнітного поля для збільшення вихідної напруги генератора.

Розташування компонентів

система пуску Geely Xingyue з 2019 року, система зарядки Geely Tugella з1 року, система пуску Джилі Тугелла з 2019 року

  1. Привідний ремінь.
  2. Натягувач приводного ременя.
  3. Генератор.
  4. Електродвигун стартера.

Діагностична інформація та процедури

Опис діагностики

Перед тим, як розпочинати діагностику несправностей системи пуску/зарядки, вивчіть розділи «Опис та принцип дії» та «Принцип роботи системи». Вони допоможуть вам ознайомитися з пристроєм та принципом дії системи пуску/зарядки, визначити правильну послідовність етапів діагностики та, що ще важливіше, дозволять визначити, чи є стан, який описує власник автомобіля, ознакою несправності або особливістю роботи системи. Діагностика несправностей системи запуску/пуску повинна завжди починатися із зовнішнього огляду, який допоможе спеціалістам з ремонту вибрати наступний логічний етап діагностики несправностей. Вміння правильно користуватися технологічними картами діагностики скорочує час, необхідний для пошуку несправності, і дозволяє уникнути помилок щодо несправних компонентів і деталей.

Зовнішній огляд

1. Перевірте наявність додаткового обладнання, встановленого після продажу автомобіля, яке може впливати на нормальну роботу систем пуску, заряджання та запалювання.

2. Перевірте видимі та доступні компоненти системи на наявність явних пошкоджень або станів, які могли спровокувати появу несправності.

3. Перевірте, чи правильно встановлена ​​акумуляторна батарея:

  • Перевірте стан акумулятора, її напруга повинна бути не нижче 11 В.
  • Перевірте з'єднання стартера, тягового реле, пускового перемикача, акумуляторної батареї та відповідні точки з'єднання з «масою» щодо пошкоджень проводів і переконайтеся в надійності цих з'єднань.

4. Якщо акумулятор, проводи, перемикачі справні і двигун працює нормально, зніміть та перевірте стартер.

5. Перевірте систему заряджання: якщо система заряджання працює справно, увімкніть пусковим перемикачем режим живлення ON. Повинна спалахнути сигнальна лампа системи заряджання, яка згасне після пуску двигуна.

6. Перевірте правильність установки генератора та надійність затягування його кріплень, перевірте натяг приводного ременя та переконайтеся, що він не прослизає.

Несправність датчика акумулятора

1. Вважайте код DTC за допомогою діагностичного тестера:

  • Підключіть діагностичний тестер до діагностичного інтерфейсу.
  • Пусковим перемикачем увімкніть режим живлення ON.
  • Вважайте код DTC системи та перевірте, чи є інші коди DTC. Якщо є, спочатку усуніть несправності, на які вказують інші коди DTC.

2. Перевірте запобіжник:

  • Пусковим перемикачем увімкніть режим живлення OFF.
  • Перевірте, чи не перегорів запобіжник EF29 у розподільній коробці моторного відсіку. Номінал запобіжника: 5 A. За потреби відремонтуйте ланцюг запобіжника і замініть запобіжник на новий такого ж номіналу.

3. Перевірте ланцюг живлення акумуляторної батареї:

  • Пусковим перемикачем увімкніть режим живлення OFF.
  • Від'єднайте роз'єм CA120 джгута проводів датчика акумулятора.
  • Пусковим перемикачем увімкніть режим живлення ON.
  • Виміряйте напругу між виводом 2 у роз'ємі CA120 джгута проводів датчика акумуляторної батареї та точкою з'єднання з масою. Номінальна напруга: 11 – 14 В. При необхідності відремонтуйте або замініть джгут дротів.

система пуску Geely Xingyue з 2019 року, система зарядки Geely Tugella з1 року, система пуску Джилі Тугелла з 2019 року

CA120, роз'єм джгута проводів датчика акумулятора 4. Перевірте ланцюг між датчиком акумулятора та блоком ECM:

  • Пусковим перемикачем увімкніть режим живлення OFF.
  • Від'єднайте роз'єм EN01g джгута проводів блоку ECM.
  • Від'єднайте роз'єм CA120 джгута проводів датчика акумулятора.
  • За допомогою мультиметра виконайте вимірювання на контактах відповідно до наведеної нижче таблиці.
Контакт 1 Контакт 2 Номінальне значення
CA120 (1) CA21c (65) Номінальний опір: менше 1 Ом
CA120 (1) Маса на кузові Номінальний опір: 10 кОм та більше

система пуску Geely Xingyue з 2019 року, система зарядки Geely Tugella з1 року, система пуску Джилі Тугелла з 2019 року

CA21c, роз'єм 2 джгута проводів блоку керування двигуном

  • Пусковим перемикачем увімкніть режим живлення ON.
  • Виміряйте напругу між виводом 1 у роз'ємі CA120 джгута проводів датчика акумуляторної батареї та точкою з'єднання з масою. Номінальна напруга: 0 Ст. За необхідності відремонтуйте або замініть джгут дротів.

система пуску Geely Xingyue з 2019 року, система зарядки Geely Tugella з1 року, система пуску Джилі Тугелла з 2019 року

CA120, роз'єм джгута проводів датчика акумулятора 5. Замініть датчик акумулятора. Перевірте, чи нормально працює система. Якщо так, то система справна. Якщо ні – перейдіть до п. 6.

6. Перевірте ланцюг живлення та ланцюг маси блоку ECM. Перевірте, чи нормально працює система. Якщо так, то виконайте пошук та усунення несправності. Якщо ні – перейдіть до п. 7.

7. Замініть блок ЄСМ. Переконайтеся, що несправність усунена.

8. За допомогою діагностичного тестера перевірте, чи знову зберігається код DTC:

  • Підключіть діагностичний тестер до діагностичного інтерфейсу.
  • Пусковим перемикачем увімкніть режим живлення ON.
  • Видаліть коди DTC.
  • Запустіть двигун і дайте йому попрацювати на холостому ходу щонайменше п'ять хвилин, щоб двигун прогрівся.
  • Виконайте дорожнє випробування на автомобілі щонайменше десять хвилин.
  • Повторно рахуйте коди DTC системи управління і перевірте, чи є в системі будь-які коди.

9. Виконайте пошук та усунення несправності.

Несправність стартера

Увага:
Перед виконанням цієї діагностичної процедури ознайомтеся з потоком даних у діагностичному тестері та перевірте правильність відповідних даних, що дозволить спростити пошук та усунення несправності.

1. Перевірте запобіжник:

  • Пусковим перемикачем увімкніть режим живлення OFF.
  • Від'єднайте провід від негативного виведення акумулятора.
  • Перевірте, чи не перегорів запобіжник EF13 у розподільній коробці моторного відсіку. Номінал запобіжника: 5 A.
  • Перевірте, чи не перегорів запобіжник SF05 у розподільній коробці моторного відсіку. Номінал запобіжника: 30 A.
  • За необхідності відремонтуйте ланцюг запобіжника та замініть запобіжник на новий такого ж номіналу.

2. Замініть реле 1 стартера:

  • Пусковим перемикачем увімкніть режим живлення OFF.
  • Замініть реле 1 стартера на інше реле з такими самими характеристиками.
  • Перевірте, чи працює стартер. Якщо так, то система справна. Якщо ні – перейдіть до п. 3.

3. Замініть реле 2 стартера:

  • Пусковим перемикачем увімкніть режим живлення OFF.
  • Замініть реле 2 стартера на інше реле з такими самими характеристиками.
  • Перевірте, чи працює стартер. Якщо так, то система справна. Якщо ні – перейдіть до п. 4.

4. Перевірте ланцюг живлення реле 1 стартера:

  • Пусковим перемикачем увімкніть режим живлення OFF.
  • Зніміть реле 1 стартера ER01.
  • Пусковим перемикачем увімкніть режим живлення ON.
  • За допомогою мультиметра виміряйте напругу між виведенням 3 у гнізді реле 1 стартера 1ER01 та точкою з'єднання з масою. Номінальна напруга: 11 - 14 ст. За необхідності відремонтуйте або замініть джгут дротів.

5. Перевірте ланцюг керування реле 1 стартера:

  • Пусковим перемикачем увімкніть режим живлення OFF.
  • Від'єднайте роз'єм CA21d джгута проводів блоку ECM.
  • Зніміть реле 1 стартера ER01.
  • За допомогою мультиметра виконайте вимірювання на контактах відповідно до наведеної нижче таблиці.
Контакт 1 Контакт 2 Номінальне значення
CA21d (27) ER01 (1) Номінальний опір: менше 1 Ом
CA21d (10) ER01 (2)
CA21d (27) Маса на кузові Номінальний опір: 10 кОм та більше
CA21d (10)

система пуску Geely Xingyue з 2019 року, система зарядки Geely Tugella з1 року, система пуску Джилі Тугелла з 2019 року

CA21d, роз'єм 2 джгута проводів блоку керування двигуном

  • Пусковим перемикачем увімкніть режим живлення ON.
  • За допомогою мультиметра виконайте вимірювання на контактах відповідно до наведеної нижче таблиці.
Контакт 1 Контакт 2 Номінальне значення
CA21d (27) Маса на кузові Номінальна напруга: 0 В
CA21d (10)
  • Перевірте, чи виміряне значення відповідає номінальному. За необхідності відремонтуйте або замініть джгут дротів.

6. Перевірте ланцюг між реле 1 стартера та реле 2 стартера:

  • Пусковим перемикачем увімкніть режим живлення OFF.
  • Зніміть реле 2 стартера ER02.
  • Пусковим перемикачем увімкніть режим живлення ON.
  • За допомогою мультиметра виконайте вимірювання на контактах відповідно до наведеної нижче таблиці.
Контакт 1 Контакт 2 Номінальне значення
ER02 (1) Маса на кузові Номінальна напруга: 11 – 14 В
ER02 (3)
  • Перевірте, чи виміряне значення відповідає номінальному. За необхідності відремонтуйте або замініть джгут дротів.

7. Перевірте ланцюг реле 2 стартера, що управляє:

  • Пусковим перемикачем увімкніть режим живлення OFF.
  • Від'єднайте роз'єм CA21d джгута проводів блоку ECM.
  • Зніміть реле 2 стартера ER02.
  • За допомогою мультиметра виконайте вимірювання на контактах відповідно до наведеної нижче таблиці.
Контакт 1 Контакт 2 Номінальне значення
CA21d (22) ER02 (5) Номінальний опір: менше 1 Ом
CA21d (22) Маса на кузові Номінальний опір: 10 кОм та більше

система пуску Geely Xingyue з 2019 року, система зарядки Geely Tugella з 201 року, система пуску Джилі Тугелла з 2019 року

CA21d, роз'єм 2 джгута проводів блоку керування двигуном

  • Пусковим перемикачем увімкніть режим живлення ON.
  • За допомогою мультиметра виміряйте напругу між виведенням 22 в роз'єм CA21d джгута проводів блоку ЄСМ і точкою з'єднання з «масою». Номінальна напруга: 0 Ст. За необхідності відремонтуйте або замініть джгут дротів.

8. Перевірте ланцюг керування стартером:

  • Пусковим перемикачем увімкніть режим живлення OFF.
  • Від'єднайте роз'єм EN04c джгута проводів збудження стартера.
  • Переведіть пусковий перемикач у режим START.
  • За допомогою мультиметра виміряйте напругу між виведенням 1 у роз'ємі EN04c джгута проводів стартера та точкою з'єднання з масою. Номінальна напруга: 11 - 14 ст. За необхідності відремонтуйте або замініть джгут дротів.

система пуску Geely Xingyue з 2019 року, система зарядки Geely Tugella з1 року, система пуску Джилі Тугелла з 2019 року

EN04c, роз'єм джгута проводів збудження стартера 9. Перевірте ланцюг живлення стартера:

  • Пусковим перемикачем увімкніть режим живлення OFF.
  • Від'єднайте роз'єм EN03c джгута проводів живлення стартера.
  • Пусковим перемикачем увімкніть режим живлення ON.
  • За допомогою мультиметра виміряйте напругу між виведенням 1 у роз'ємі EN03c джгута проводів живлення стартера та точкою з'єднання з масою. Номінальна напруга: 11 - 14 ст. За необхідності відремонтуйте або замініть джгут дротів.

система пуску Geely Xingyue з 2019 року, система зарядки Geely Tugella з1 року, система пуску Джилі Тугелла з 2019 року

EN03c, роз'єм джгута проводів живлення стартера 10. Замініть стартер. Переконайтеся, що несправність усунена. Перевірте, чи працює реле стартера. Якщо так, то виконайте пошук та усунення несправності. Якщо ні – перейдіть до п. 11.

11. Замініть блок ВСМ. Переконайтеся, що несправність усунена. Перевірте, чи працює реле стартера. Якщо так, то виконайте пошук та усунення несправності. Якщо ні – перейдіть до п. 12.

12. Перевірте ланцюг живлення та ланцюг маси блоку ECM. Перевірте, чи нормально працює система. Якщо так, то виконайте пошук та усунення несправності. Якщо ні – перейдіть до п. 13.

13. Замініть блок ECM.

14. Діагностика завершена.

Двигун не запускається

Увага:
Перед виконанням цієї діагностичної процедури необхідно перевірити усі запобіжники системи пуску/зарядки, що дозволить прискорити усунення несправності.

1. Перевірте акумулятор на предмет низької напруги:

  • За допомогою мультиметра виміряйте напругу на виводах акумулятора. Номінальна напруга: 9 – 16 Ст.
  • Перевірте, чи виміряне значення відповідає номінальному. Якщо не відповідає, замініть акумулятор.

2. Перевірте ланцюг живлення та ланцюг маси блоку BCM. Перевірте, чи відповідають нормі стан усіх систем. Якщо ні, усуніть виявлені несправності. Якщо так, перейдіть до п. 3.

3. Перевірте ланцюг живлення та ланцюг маси блоку ECM. Перевірте, чи відповідають нормі стан усіх систем. Якщо ні, усуніть виявлені несправності. Якщо так – перейдіть до п. 4.

4. Перевірте, чи працює стартер.

5. Замініть блок ECM.

Діагностика стороннього шуму у стартері

Перш ніж приступити до діагностики, ознайомтеся з описом системи та запобіжні заходи. Див. п. «Опис та принцип роботи системи запуску». Див. п. «Опис та принцип роботи системи заряджання». Виконайте всі необхідні перевірки.

1. Запустіть двигун і перевірте, чи стартер працює:

Якщо двигун запущено, але стартер продовжує працювати, чи чути гучний хрипкий звук (при збільшенні обертів двигуна і стартері, що знаходиться в зачепленні, звук може нагадувати звучання сигналізації)? Якщо так, то перевірте зубчастий вінець маховика на предмет таких пошкоджень: тріщини в зубах, зубці маховика, що бракують і зношені. Перевірте маховик на наявність викривлень або пошкоджень та замініть його за потреби.

2. Після запуску двигуна і в міру поступової зупинки стартера чи чути звук, що нагадує бурчання, рокіт чи стукіт (у деяких випадках)? Якщо так, перейдіть до п. 4, якщо ні – до п.п. 3.

3. При пуску двигуна чи чути високочастотний динамічний гул після прокручування колінчастого валу і нормального пуску двигуна? Якщо так, замініть стартер.

4. Розберіть стартер та перевірте його:

Перевірте втулку та обгінну муфту стартера на наявність зносу, тріщин та інших пошкоджень. За наявності пошкоджень замініть стартер. Якщо пошкодження відсутні, перейдіть до п. 5.

5. Замініть маховик.

6. Виконайте пошук та усунення несправності.

Індикатор заряджання не світиться

1. Перевірте джгут проводів між блоком ЄСМ та генератором:

  • Пусковим перемикачем увімкніть режим живлення OFF.
  • Від'єднайте роз'єм CA21d джгута проводів блоку ECM.
  • Роз'єднайте роз'єм EN14c джгута проводів генератора.
  • За допомогою мультиметра виконайте вимірювання на контактах відповідно до наведеної нижче таблиці.
Контакт 1 Контакт 2 Номінальне значення
EN14c (1) CA21d (93) Номінальний опір: менше 1 Ом
EN14c (1) Маса на кузові Номінальний опір: 10 кОм та більше
  • Пусковим перемикачем увімкніть режим живлення ON.
  • За допомогою мультиметра виміряйте напругу між виведенням 1 у роз'ємі EN14c джгута проводів генератора та масою кузова. Номінальна напруга: 0 Ст. За необхідності відремонтуйте або замініть джгут дротів.

система пуску Geely Xingyue з 2019 року, система зарядки Geely Tugella з1 року, система пуску Джилі Тугелла з 2019 року

EN14c, роз'єм джгута проводів генератора

система пуску Geely Xingyue з 2019 року, система зарядки Geely Tugella з1 року, система пуску Джилі Тугелла з 2019 року

CA21d, роз'єм 2 джгута проводів блоку керування двигуном 2. Перевірте цілісність шини CAN:

  • Перевірте цілісність шини PT-CAN.
  • Перевірте цілісність шини IF-CAN.
  • Переконайтеся, що шина CAN справна. Якщо ні, усуніть причину порушення роботи шини CAN.

3. Замініть комбінацію приладів. Зверніться до пункту із описом заміни. Перевірте, чи несправність усунена. Якщо так, то система справна. Якщо немає, перейдіть до п. 4.

4. Замініть блок ЄСМ.

5. Виконайте пошук та усунення несправності.

Індикатор заряджання постійно світиться

1. Перевірте напругу акумулятора:

  • Пусковим перемикачем увімкніть режим живлення ON.
  • За допомогою мультиметра виміряйте напругу акумулятора. Номінальна напруга: 11 – 14 Ст.
  • Перевірте, чи виміряне значення відповідає номінальному. Якщо не відповідає, замініть акумулятор або відремонтуйте систему заряджання.

2. Замініть комбінацію приладів. Перевірте, чи несправність усунена. Якщо так, то система справна. Якщо ні, перейдіть до п. 3.

3. Замініть блок ЄСМ. Перевірте, чи несправність усунена.

4. Виконайте пошук та усунення несправності.

Шуми в генераторі

Причиною шумів у генераторі може бути механічна чи електрична несправність. Електричні шуми (електромагнітний гул) змінюються залежно від електричного навантаження на генератор. Вони є нормальною робочою характеристикою всіх генераторів, тому слід вміти відрізняти їхню відмінність від інших видів шумів. Зважайте на цей факт при надходженні необґрунтованих скарг з боку клієнта. Під час діагностики генератора при виникненні в ньому механічних шумів спочатку перевірте, чи не ослаблені деталі навколо генератора, а також чи не стикаються деталі один з одним. У деяких випадках навіть незначний шум у відсіку може проникати в салон автомобіля. У такому разі заміна генератора не призведе до усунення несправності, а спричинить необґрунтований ремонт.

1. Зупиніть генератор і перевірте, чи шуми зникли:

  • Запустіть двигун і переконайтеся, що чуєте шум, що створюється.
  • Вимкніть двигун.
  • Переведіть пусковий перемикач у режим OFF.
  • Від'єднайте провід від негативного виведення акумулятора.
  • Від'єднайте роз'єм джгута проводів генератора.
  • Підключіть негативний дріт акумулятора.
  • Запустіть двигун.
  • Перевірте, чи припинився шум? Якщо припинився, перейдіть до п. 6, якщо ні – до п.п. 2.

2. Перевірте вал генератора:

  • Вимкніть двигун.
  • Зніміть ремінець.
  • Повертайте шків генератора від руки.
  • Чи обертається генератор плавно, без заклинювання та звуку тертя? Якщо так, перейдіть до п. 6, якщо ні – до п.п. 3.

3. Встановіть генератор:

  • Повторно встановіть генератор і затягніть болти номінальним моментом.
  • Запустіть двигун і перевірте, чи припинився шум? Якщо припинився, система справна, якщо ні, то перейдіть до п. 4.

4. Перевірте, чи не ослаблений приводний ремінь? Якщо ремінь ослаблений, перейдіть до п. 7, якщо ні – до п. 5.

5. Перевірте, чи шум робочого шуму справного автомобіля відповідає? Якщо так, система справна, якщо ні, то перейдіть до п. 6.

6. Замініть генератор у зборі. Переконайтеся, що несправність усунена.

Увага:
- Якщо явну несправність генератора не виявлено, переконайтеся в тому, що всі інші потенційні джерела шуму усунуті, і тільки після цього переходьте до заміни генератора.
- Якщо шум є нормальною характеристикою роботи генератора, він не зникне після його заміни.

7. Замініть приводний ремінь або натягувач ременя.

8. Виконайте пошук та усунення несправності.

Перевірка струму розрядження / паразитного навантаження акумулятора

Якщо акумулятор постійно розряджається, виконайте такі дії, щоб перевірити акумулятор на наявність паразитного струму.

Увага:
Перед виконанням цієї процедури перевірте автомобіль на наявність додаткового обладнання, наприклад, програвача DVD-дисків, аудіопідсилювача, сабвуфера та інших неоригінальних пристроїв.

1. Від'єднайте провід від негативного виведення акумулятора.

2. Під'єднайте один щуп цифрового мультиметра до негативного проводу акумуляторної батареї, а інший щуп до негативного виведення акумуляторної батареї.

3. Встановіть максимальний діапазон перевірки струму на цифровому мультиметрі.

4. Відкрийте передні ліві двері та рахуйте показання на дисплеї мультиметра.

Увага:
Під час перевірки не виконуйте жодних інших операцій, інакше можливе пошкодження мультиметра.

5. Якщо на дисплеї мультиметра не відображаються жодні показання, перевірте справність мультиметра. Якщо на дисплеї мультиметра відображається значення струму, закрийте передні ліві двері, натисніть кінцевий вимикач капота двигуна, а потім натисніть кнопку замикання дверей на пульті дистанційного керування.

6. Зачекайте приблизно 10 хвилин і рахуйте показання мультиметра (якщо виміряне значення не відповідає нормі, відрегулюйте діапазон вимірювань мультиметра). Покази мультиметра повинні перевищувати 30 мА. Значення понад 30 мА свідчить про наявність паразитного струму.

Увага:
Якщо наявність паразитного струму в системі не можна точно визначити, можна використовувати справний автомобіль для порівняння, що допоможе підтвердити наявність несправності.

Порядок запуску двигуна від зовнішнього джерела

1. Припаркуйте автомобіль із повністю зарядженою акумуляторною батареєю (яка є зовнішнім джерелом живлення) таким чином, щоб проводами для запуску двигуна від зовнішнього джерела можна було з'єднати акумуляторні батареї двох автомобілів.

2. Переведіть пускові перемикачі обох автомобілів у режим OFF, вимкніть фари та вимкніть усі допоміжні пристрої.

3. Натисніть вимикач аварійної світлової сигналізації, щоб увімкнути аварійну світлову сигналізацію.

4. Приведіть у дію гальма стоянки обох автомобілів.

5. Переконайтеся, що важіль перемикання передач встановлений у нейтральне положення.

Увага:
Провід для запуску двигуна від зовнішнього джерела живлення має бути справним, без оголених ділянок; в іншому випадку можливе ураження електричним струмом або пошкодження автомобіля.

6. Підключіть один кінець червоного дроту до позитивного виведення зарядженої акумуляторної батареї та подбайте про те, щоб між ним та іншими металевими деталями не було контакту.

7. Підключіть інший кінець червоного дроту до позитивного виведення розрядженої акумуляторної батареї. Не під'єднуйте червоний провід до негативного виведення розрядженої акумуляторної батареї.

Увага:
Забороняється приєднувати провід для запуску двигуна від зовнішнього джерела живлення до негативного виведення розрядженої акумуляторної батареї для запобігання утворенню іскор та можливого вибуху газу всередині акумуляторної батареї.

8. Підключіть один кінець чорного кабелю до негативного виведення зарядженої акумуляторної батареї.

9. Під'єднайте інший кінець чорного дроту до блоку двигуна автомобіля з розрядженим акумулятором на відстані не менше 500 мм від розрядженого акумулятора.

10. Запустіть двигун автомобіля із зарядженою акумуляторною батареєю і дайте йому попрацювати на середніх обертах протягом як мінімум трьох хвилин.

11. Запустіть двигун автомобіля з розрядженим акумулятором.

12. Зніміть дроти для запуску двигуна від зовнішнього джерела живлення у зворотному порядку.

13. Завершіть усі операції.

Зняття та встановлення

Порядок від'єднання та підключення проводів акумулятора

Від'єднання

1. Відкрийте капот двигуна.

2. Вимкніть усі електричні пристрої та переведіть пусковий перемикач у режим OFF.

3. Відкрийте кришку позитивного виведення акумулятора.

4. Відкрутіть гайку (1) кріплення клеми негативного проводу акумулятора та від'єднайте провід.

5. Відкрутіть гайку (2) кріплення клеми позитивного проводу акумулятора та від'єднайте провід.

система пуску Geely Xingyue з 2019 року, система зарядки Geely Tugella з1 року, система пуску Джилі Тугелла з 2019 року

Підключення

1. Під'єднайте позитивний дріт акумулятора та затягніть гайку для кріплення (2).

система пуску Geely Xingyue з 2019 року, система зарядки Geely Tugella з1 року, система пуску Джилі Тугелла з 2019 року

2. Під'єднайте негативний кабель акумулятора та затягніть гайку для кріплення (1). Момент затягування: 23 Н·м.

3. Закрийте кришку позитивного виведення акумулятора.

4. Закрийте капот двигуна.

Заміна датчика акумулятора

1. Відкрийте капот двигуна.

2. Від'єднайте кабель від негативного виведення акумулятора.

3. Від'єднайте роз'єм (1) джгута проводів датчика акумулятора, відверніть гайку (2) і зніміть датчик.

система пуску Geely Xingyue з 2019 року, система зарядки Geely Tugella з1 року, система пуску Джилі Тугелла з 2019 року

4. Встановлюйте в порядку, зворотному зняття.

Заміна акумулятора

1. Відкрийте капот двигуна.

2. Від'єднайте кабель від негативного виведення акумулятора.

3. Зніміть верхню панель переднього бампера.

4. Зніміть верхню панель лівого крила.

5. Зніміть впускний патрубок повітряного фільтра.

6. Зніміть повітряний фільтр.

7. Викрутіть два болти притискної пластини акумуляторної батареї.

Примітка:
Момент затягування під час встановлення: 9 Н·м.

система пуску Geely Xingyue з 2019 року, система зарядки Geely Tugella з1 року, система пуску Джилі Тугелла з 2019 року

8. Встановлюйте в порядку, зворотному зняття, але враховуйте наступне: переконайтеся, що акумуляторна батарея розташована в належному положенні на полиці акумуляторної батареї.

Заміна полиці акумулятора

1. Відкрийте капот двигуна.

2. Зніміть акумулятор.

3. Викрутіть чотири болти (1) полиці акумулятора.

Примітка:
Момент затягування під час встановлення: 9 Н·м.

4. Відкрутіть кріпильну гайку (2) джгута проводів двигуна.

Примітка:
Момент затягування під час встановлення: 9 Н·м.

система пуску Geely Xingyue з 2019 року, система зарядки Geely Tugella з 20 року, система пуску Джилі Тугелла з 2019 року

5. Встановлюйте в порядку, зворотному знятті, але при цьому враховуйте наступне: переконайтеся, що полиця акумулятора розташована в належному положенні на кузові автомобіля.

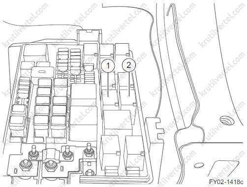
Заміна реле стартера

1. Відкрийте капот двигуна.

2. Від'єднайте кабель від негативного виведення акумулятора.

3. Відкрийте кришку реле.

4. Вийміть реле 1 (1) та реле 2 (2) стартера.

система пуску Geely Xingyue з 2019 року, система зарядки Geely Tugella з1 року, система пуску Джилі Тугелла з 2019 року

5. Встановлюйте в порядку, зворотному зняття.

Заміна генератора

1. Відкрийте капот двигуна.

2. Від'єднайте кабель від негативного виведення акумулятора.

3. Зніміть ремінець.

4. Зніміть натягувач ременя.

5. Від'єднайте роз'єм (1) джгута проводів генератора.

6. Відкрутіть притискну гайку (2) зарядного дроту генератора.

Примітка:
Момент затягування при встановленні: 19 Н·м.

система пуску Geely Xingyue з 2019 року, система зарядки Geely Tugella з1 року, система пуску Джилі Тугелла з 2019 року

7. Викрутіть два болти генератора і зніміть генератор.

Примітка:
Момент затягування при встановленні: 48 Н·м.

система пуску Geely Xingyue з 2019 року, система зарядки Geely Tugella з1 року, система пуску Джилі Тугелла з 2019 року

8. Викрутіть шість кріпильних болтів кронштейна генератора та зніміть кронштейн.

Примітка:
Момент затягування при встановленні: 48 Н·м.

система пуску Geely Xingyue з 2019 року, система зарядки Geely Tugella з1 року, система пуску Джилі Тугелла з 2019 року

9. Встановлюйте в порядку, зворотному зняття.

Заміна стартера

1. Відкрийте капот двигуна.

2. Від'єднайте кабель від негативного виведення акумулятора.

3. Зніміть верхню панель переднього бампера.

4. Зніміть впускний патрубок повітряного фільтра.

5. Зніміть декоративний кожух двигуна.

6. Відкрутіть кріпильну гайку (1) клеми джгута проводів стартера та від'єднайте клему.

7. Викрутіть болт (2) кріплення стартера до кронштейна.

Примітка:
Момент затягування під час встановлення: 10 Н·м.

система пуску Geely Xingyue з 2019 року, система зарядки Geely Tugella з1 року, система пуску Джилі Тугелла з 2019 року

8. Викрутіть три болта кріплення стартера до картера коробки передач і зніміть стартер.

Примітка:
Момент затягування при встановленні: 47 Н·м.

система пуску Geely Xingyue з 2019 року, система зарядки Geely Tugella з1 року, система пуску Джилі Тугелла з 2019 року

9. Встановлюйте в порядку, зворотному зняття.

На цьому вебсайті використовуються файли cookie. Натискаючи ПРИЙНЯТИ або залишаючись на ньому, ви дозволяєте нам використовувати файли cookie. Докладніше
Прийняти